1-к. квартира, 23.0 м², 2 эт.
30 000 р.
в месяц
Владивосток, Советский р-н, улица Кирова 62
Требования: Порядочность, пунктуальность с оплатами, без животных. Залог возвращается при съезде с квартиры (договор). Просмотр по договоренности. Просмотр в любой день по согласованию с жильцами. Заселиться можно с 05.11.2025 г.
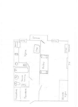
Мебель: Диван - кровать (спальное место 160х190), Кресло-кровать (спальное место 80х190), Шкаф (80х230, полки, штанга), Шкаф (60х220), полки, штанга) стол-книжка, две табуретки, Тумбочка на колесиках, все видно на фото. Кухонный гарнитур., Письменный стол Диван, Журнальный столик, Компьютерный стол, Кресло, Кухонный гарнитур, Обеденный стол, Письменный стол, Стенка, Шкаф, Шкаф-купе
Техника: Холодильник LG двух камерный, Плита МЕЧТА с духовкой на две конфорки, Микроволновая печь SUPRA на 23 литров, Чайник Tefal на 1,8 литра, Стиральная машина LG автомат на 5.5 кг., Вся техника в рабочем состоянии, внешний вид видно на фото., Телевизор LED с диагональю 29 дм., Титан 80 лит. Термекс Микроволновая печь, Плита, Стиральная машина, Титан, Телевизор, Холодильник, Чайник
Особенности: Большая гостинка 24 кв. м. на 2-м этаже, но с обратной стороны еще цокольный этаж, поэтому фактически третий этаж, не далеко от лифта, не угловая, отличный вид из окна, хороший район, железная дверь и вторая деревянная, линолеум на полу, пластиковое окно, стены и потолок выровнены, обои, в туалете кафель, раковина., Железная дверь, Линолеум, Межкомнатные двери, Пластиковые окна, Стены выровнены
Дополнительная информация:
С животными нельзя; дополнительно оплачиваются свет, вода.
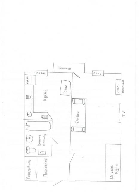
Мебель: Диван - кровать (спальное место 160х190), Кресло-кровать (спальное место 80х190), Шкаф (80х230, полки, штанга), Шкаф (60х220), полки, штанга) стол-книжка, две табуретки, Тумбочка на колесиках, все видно на фото. Кухонный гарнитур., Письменный стол Диван, Журнальный столик, Компьютерный стол, Кресло, Кухонный гарнитур, Обеденный стол, Письменный стол, Стенка, Шкаф, Шкаф-купе
Техника: Холодильник LG двух камерный, Плита МЕЧТА с духовкой на две конфорки, Микроволновая печь SUPRA на 23 литров, Чайник Tefal на 1,8 литра, Стиральная машина LG автомат на 5.5 кг., Вся техника в рабочем состоянии, внешний вид видно на фото., Телевизор LED с диагональю 29 дм., Титан 80 лит. Термекс Микроволновая печь, Плита, Стиральная машина, Титан, Телевизор, Холодильник, Чайник
Особенности: Большая гостинка 24 кв. м. на 2-м этаже, но с обратной стороны еще цокольный этаж, поэтому фактически третий этаж, не далеко от лифта, не угловая, отличный вид из окна, хороший район, железная дверь и вторая деревянная, линолеум на полу, пластиковое окно, стены и потолок выровнены, обои, в туалете кафель, раковина., Железная дверь, Линолеум, Межкомнатные двери, Пластиковые окна, Стены выровнены
Дополнительная информация:
С животными нельзя; дополнительно оплачиваются свет, вода.
Необходим залог, 25000 р.
Снято с публикации: 09.11.25 в 13:54
Информация о доме
Год постройки / Ввода: 1967
Этажей: 9
Другие 1-комнатные квартиры в Советском районе Владивостока от собственников
1-к квартира, 36 м²55 000 р.
Вчера 08:21
улица Русская 63л кор. 1
Требования: В квартире - изолированная гостиная, отдельная кухня, которая оборудована всем необходим...
1-к квартира, 23.2 м²28 000 р.
07.12.25 00:03
улица Кирова 62
Требования: Предложение только для Русских граждан!!!Сдам гостинку в хорошем состоянии на длительный...
1-к квартира, 24 м²35 000 р.
09.12.25 18:31
улица Русская 87
Требования: Сдадим уютную квартиру очень порядочным, некурящим и платежеспособным людям. Район с чис...
1-к квартира, 25 м²38 000 р.
09.12.25 18:33
улица Русская 65а
Требования: Порядочные, платежеспособные,
Квартира сдается официально с заключением договора и пре...
Другие 1-комнатные квартиры в Владивостоке без посредников
1-к квартира, 25 м²35 000 р.
05.12.25 22:19
улица Шевченко 17а
Требования: Квартира свободна с 1 декабря 2025 года.
Без животных.
Курить только на улице!!!
...
1-к квартира, 28 м²50 000 р.
05.12.25 22:10
улица Зеленый бульвар 25
Требования: Аккуратность, платежеспособность. С животными нельзя. Курить запрещено.
Мебель: Прихожа...
1-к квартира, 34.7 м²37 000 р.
09.12.25 18:30
улица Зои Космодемьянской 17а
Требования: Аккуратность, платежеспособность, добросовестность,вежливость, отсутствие домашних питом...
1-к квартира, 25 м²40 000 р.
09.12.25 19:01
улица Енисейская 6
Требования: От собственника! В шаговой доступности детский сад, школа, детская площадка ,торговые це...




















































































































































